de +43(0)650 770 4715 Mo - Fr: 09:00 - 18:00 A-3512, Unterbergern 8/7
Kassenförderung möglich
Wir unterstützen Sie!
Wir beraten Sie persönlich!
In Österreich, Deutschland & Schweiz
Jetzt Anfragen

Lift Toilette Care

Menschen für Menschen

Lift Toilette Care

Die Lift Toilette Care ist eine Erweiterung des Modells ForAll und bietet neben den Vorteilen eines klassischen Lift-WCs zusätzliche Barrierefreiheit. Durch die Anbringung gefederter und äußerst stabiler Stütz-Klapp-Griffe mit integrierter Steuerungstastatur wird der selbstständige Gang zur Toilette ermöglicht.

Eignung für:

  • Personen mit Schwierigkeiten bei der Nutzung einer Standard-Toilette, v. a.
  • Hilfs- und Pflegebedürftige mit motorischen Bewegungseinschränkungen
  • Menschen mit körperlicher Beeinträchtigung oder Behinderung

Einsatzbereiche:

  • Toilettenlift durch stufenlose Höhenverstellung (350 mm)
  • barrierefreie Toilettennutzung durch Stütz-Klapp-Griffe
  • komfortable Setz- und Aufstehhilfe

Steuerungsmöglichkeiten:

Die Lift Toilette Care lässt sich stufenlos elektrisch in die Höhen zwischen 400 mm und 750 mm fahren und feststellen

  • Wandschalter
  • im Griff integrierte Steuerungstastatur
  • auf Wunsch Tasten für Spülung und Alarm
  • auf Wunsch zusätzliche Fernsteuerung
  • auf Wunsch Infrarotsensor (in den Wandschalter integriert für autom. Spülung)

Design & Integration:

Die Lift Toilette Care lässt sich ohne Probleme in jeden Sanitärraum einbauen:

  • Unterputzmontage bei Wand-WCs
  • geeignet für Standard-WCs sowie für Dusch-WCs und Bidets
  • hochwertige Materialien für einen eleganten, zeitlosen Look
  • einfache Pflege und Reinigung durch nutzerfreundliche, glatte Oberflächen

Unterputzrahmen bestehend aus:

  • verzinkten Stahlprofilen
  • integriertes Spülkastensystem UP 320 Geberit
  • Betätigungsplatte (Farbe: Weiß)
    mit Start-Stop-System
  • Abfluss-Set
  • Elektroeinheit
  • Kunststoffabdeckung (Farbe: Weiß)
  • Wandschalter für Höhenverstellung
  • Multifunktionale, mitfahrende Stütz-Klapp-Griffe
  • Steuerungen im Griff integriert (hoch, runter,
    auf Wunsch Spülung und Alarm)

Technische Daten:

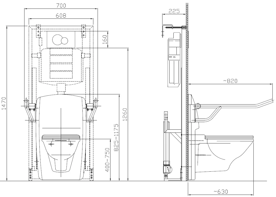
  • Maße: 1470 x 700 mm
  • Höhenverstellung: 400 – 750 mm
  • Wasserabfluss DN100
  • Stromanschluss 230V/50Hz 16A
  • Wasseranschluss G1/2“
  • Eckventile G3/8“
  • Antriebssteuerung 24V DC

Lift Toilette Care – Aufbaualternativen

Die Lift Toilette Care kann nach Ihren Wünschen konfiguriert und erweitert werden. Für das Unterputzelement bieten wir verschiedene Griffe, Steuerungsalternativen, diverse Sitzflächen und Toiletten-Schüsseln an, wie z. B. Bidets, Sitzbrillen mit Transferplatte oder Geberit Aquaclean.

Downloads